將我的博客複製一份至《海外博客》
由於數據量較大,請您耐心等待複製完成
2016 (532)
2017 (52)
2025 (2)
回複 '三河匹夫' 的評論 : 嗯,後來旅遊期間聽導遊介紹...
煙絲是抽水煙的。
神遊夜市,夢中尋食
哈哈,Takow譯作打狗?居然不興保護動物?
回複 'Norstar' 的評論 : 說的是地球吧?
回複 'ytwadk' 的評論 : 國軍隻會正麵會戰日軍,不會打...
你說的是大陸吧?
國軍隻會耍花槍,中看不中用
難怪名嘴會以吃茶葉蛋而自豪
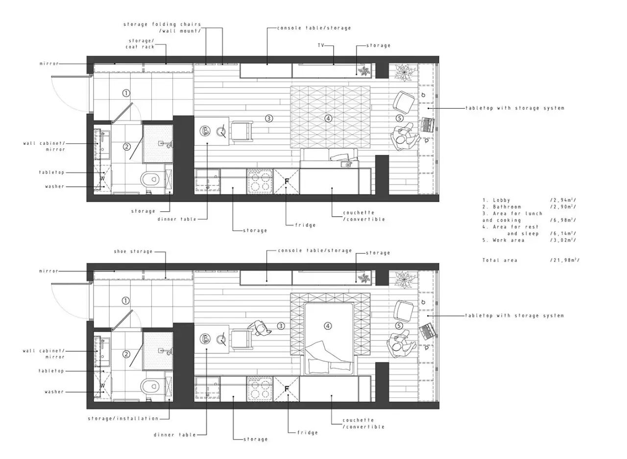
俄羅斯設計師 Andrey Barinov 的22平米空間方案。
廚房、客廳、衛生間一應俱全,床隱藏在牆中。恰當的儲物和簡潔的家具讓空間利用率更高。