正文

他造了全世界最窄的房子,隻有0.7米寬,一不小心成了城市地標,所有人都排隊去參觀

(2016-06-16 07:29:05) 下一個
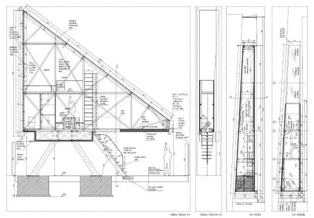
最小的住宅Karet?House122cm,手臂張開的寬度,在這樣的空間裏,能幹嘛?
 
 
有人在這條縫隙裏,造了一間全世界最窄的房子,還讓人住了進去。房子最寬的地方122cm,最窄的地方,隻有72cm。
 
 
而多年前,它就是個垃圾破爛堆。
 
 
造這棟房子的人是位波蘭的建築師,名叫Jakub Szczesny,故事要從很多年前開始說起。2009年的某一天,Jakub走在華沙猶太區的街上,看到了這條擱在兩棟房子中間的縫,心裏就起了要在這中間造個房子的念頭。他還打了電話給作家Keret,說希望房子建好之後,他可以住進去。然後Jakub就開始搞起了設計圖,
 
 
接著做好了模型,木頭結構,搗鼓了好久卻發現,木頭不透光,人要住在裏邊,很容易得幽閉症。
 
 
沒辦法,隻能換盡可能透光的材料,重新來。
 
 
效果圖出來,看起來還真像那麽回事兒,房子是個直角三角形狀的小複式。樓下是衛生間、廚房和客廳,樓上是臥室和工作室。然鵝並沒有什麽卵用,政府不通過,項目擱置了整整三年,直到2012年才被應允正式動工。看著這條隻有1米2的縫,建築工人們的內心幾乎是崩潰的……根本沒法直接在裏邊施工啊……所以Jakub跑遍了波蘭,也隻找到一家建築公司願意跟著他幹這“蠢事”。
 
 
無法直接施工,所以隻能把架子在外麵裝好了,再塞進縫裏,?Jakub站在架子上,一副自信的表情:我就要造給你們看!
 
 
各種裝,各種吊,沒地方站,建築工人們就整個人扒在架子上,難度指數max。(據說起重機還是從德國運過來的)
 
 
架子搭得差不多了,需要整個搬去縫裏,一點一點,塞進去,開吊車的師傅應該要瘋了。
 
 
吊車夠不到的地方,還需要工人們人力來扛……
 
 
螺絲什麽的,一個個手工固定,吊車完工之後,一切都成了人力勞動,
 
 
千辛萬苦,架子算是搭好了,卡在兩麵牆中間,
 
 
接下來是裝特殊材質的牆體,可以保證光照那種。最慘的依舊是建築工人,1米2的縫裏,要抱著一塊塊板,艱難地進出……
 
 
劈裏啪啦施工幾個月後,房子建好了,取名叫Keret House,作家Etgar Keret是第一個往裏住的人,房子雖小,也得來個正式的剪彩儀式。
 
 
Jakub本人似乎也非常滿意,
 
 
整個建築的麵積隻有14.5平米,廚房、浴室、臥室,該有的都有,門一打開,就是一架3米高的樓梯,
 
 
梯子的奇妙之處在於,可以隨意收放,沒錯,還能防盜。
 
 
順著梯子爬上樓,打開房子的第二扇門,
 
 
在你眼前的,就是二樓和三樓的全景,
 
 
二樓的最深處是浴室,上廁所是可以的,洗澡,也是可以的。
 
 
廁所出來,是個小廚房,洗手池、電磁爐、冰箱啥的,也都有。
 
 
燒水煮飯不是問題,
 
 
廚房外邊是一個小客廳,朋友來坐不下怎麽辦?那就一個個請。兩人份的食物,桌子上還是放得下的。
 
 
合上開在過道的門,對麵是一個懶人沙發,坐在上麵看看書睡覺啥的,不用擔心光線不足,因為側頂也是透明的。
 
 
順著梯子慢慢爬上三樓,就是臥室和工作台。
 
 
天花板夠高,所以屋子再窄,看上去也不會那麽壓抑。
 
 
窄窄的床上被子當然也需要整理,
 
 
大多數時候,Keret就坐在工作台前寫寫故事。
 
 
慢慢地房子就成了華沙的一個地標,經常會有來自各地的人前來參觀,人擠人,排著隊,個個都想進這所謂全世界最窄的房子探探究竟,
 
 
比如坐上懶人沙發休息休息,
 
 
或者爬到三樓看看,
 
 
又或者是哢嚓哢嚓各種拍。
 
 
總之對於屋子裏的所有東西,進來的人們都是驚訝的。
 
 
因為房子太小太窄,容易讓人產生幽閉恐懼症,所以不可能讓誰長期住在裏麵,Keret House就成了一個藝術裝置,來到華沙的藝術家們,都可以申請進裏麵住幾天,體驗一下“蝸居”的感覺。
 
 
再小的空間,也要體麵地生活。
[ 打印 ]
閱讀 ()評論 (2)
評論
小學同桌 回複 悄悄話 有空過來串門兒。^_^
yanlan 回複 悄悄話 太喜歡你的博客了!
登錄後才可評論.